物件詳細 物件No.200
名称 |
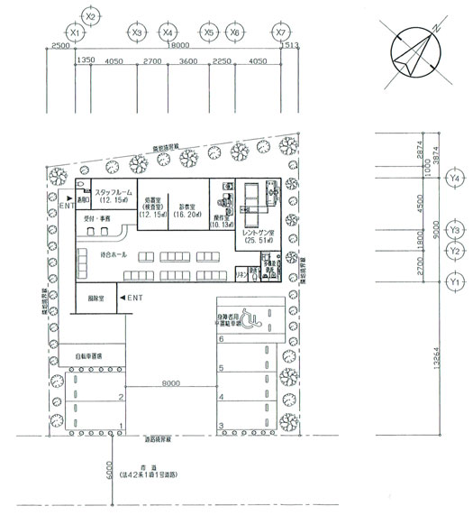
さいたま市見沼区東大宮クリニック計画 |
|---|---|
交通 |
東北本線「東大宮」駅 11分 |
所在地 |
さいたま市見沼区東大宮6丁目486 |
土地面積 |
530㎡(160.32坪) |
建物面積 |
55.57坪 |
賃料 |
527,915円(9,500円/坪) |
駐車場 |
42,000円(7台×6,000円) |
保証金 |
6ヶ月 |
募集科目 |
内科(循環器・消化器・内分泌代謝・他)・皮膚科 |
土地利用 |
有効活用 (地主が建築しリース) |
図面 |
![]() |
物件のお問い合わせはこちら⇒
